Henley Drive, Frimley Green

Sold Subject to Contract Offers In Excess Of, £415,000

3 1 2
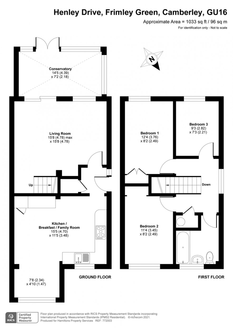
FULL DESCRIPTION Hamiltons are proud to bring to the market this well presented three-bedroom, semi-detached family home situated on a highly sought after and quiet cul-de-sac in the heart of Frimley Green Village. The property is located within walking distance of popular local schools, an array of local shops, pubs and of course, Frimley Lodge Park with its children's play areas, miniature steam-railway and access to the Basingstoke Canal offering walks for miles.

The ground floor accommodation comprises a spacious front aspect kitchen, with its contrasting range of both eye and low-level units. The space allows for a dining area, thanks to a smart conversion of the integral garage. Off the entrance hall is a generous sitting room with sliding doors leading out to conservatory with double doors out to the newly landscaped rear garden, with Astro turf and a decked seating area to the rear.

On the first floor are the three bedrooms and the family bathroom with panel enclosed bath with a wall mounted shower above, WC and pedestal washbasin.

Further benefits to the property include gas fired central heating. Externally, on the front of the property is resin sealed paved driveway suitable for parking two cars

**Agents Note: This property is owned by someone that is related to or associated to an employee of Hamiltons..

Council tax band D - £2,177.
  • Three Bedrooms
  • Refitted Kitchen
  • Landscaped Rear Garden
  • Sought After Road
  • Driveway Parking
Floorplan for Henley Drive, Frimley Green
Similar Properties

Get an instant online valuation

Find out how much your property is worth