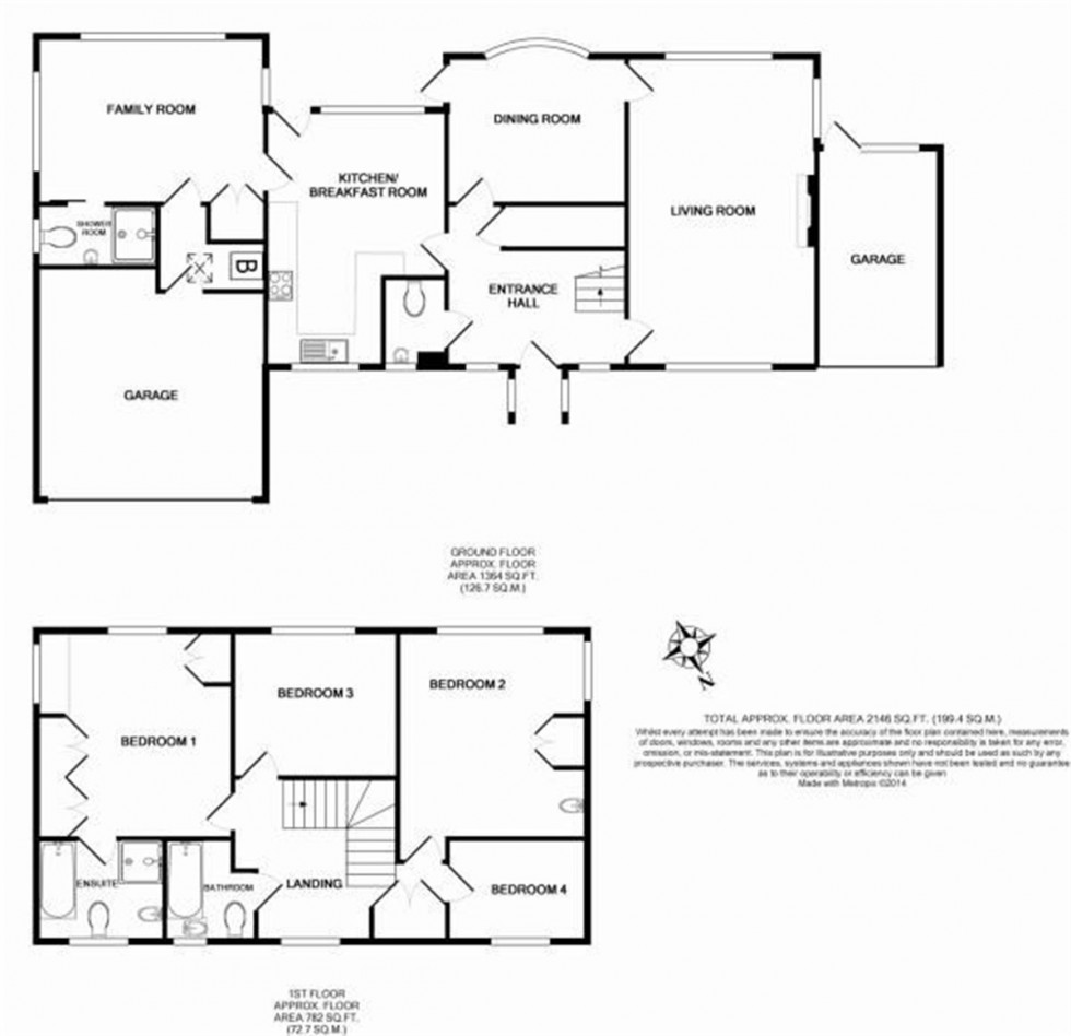
FULL DESCRIPTION This 1930s four bedroom detached family home is located on one of Camberleys popular non estate tree lined roads, situated within walking distance of Camberley shopping centre and train station. This property benefits from a large secluded rear garden with gate access to playing fields.

The ground floor accommodation comprises a open planned entrance hall leading to the spacious triple aspect living room, a rear aspect dining room with bay window overlooking the garden, a duel aspect kitchen/ breakfast room with integrated appliances including fridge freezer, dishwasher , oven and hob, leading to the rear aspect family room/bedroom five with shower room.

To the first floor there is a spacious landing leading to three double and one single bedrooms with en-suite to the master suite as well as the family bathroom.

Further benefits include one double and one single garage, gas fired central heating via radiators, and a driveway providing ample off road car parking.

Agents Note: The swimming pool is not in working order and does not work.

Council Tax Band G
  • Four Bedrooms
  • Three Reception Rooms
  • En-Suite to Master
  • Double and Single Garage
  • Large Plot of Land
  • Cloakroom and Shower Room
Floorplan for Parkway ,Surrey GU15 2PD

Get an instant online valuation

Find out how much your property is worth